
After enduring extensive repairs from the Christchurch earthquakes, this home is ready for a bold new chapter. A young family of four came to Build Right with a clear vision: a home that grows with them — with more space, better functionality, and a design that reflects the next stage of their lives.
The client brief to Build Right was:
At Build Right, we know that a house renovation or extension is about more than simply adding rooms — it’s about reshaping the way you live. This project is designed to create a home that grows with the family and supports the way they want to live, now and into the future.
Our design team worked hand-in-hand with them to turn their vision into something even greater than they imagined.


Perched high on the Port Hills, the home offers one of the most breathtaking views in Christchurch — a sweeping panorama that stretches from the city skyline to the shimmering waters of the Pacific Ocean. It’s a view that stops you in your tracks, and for the homeowners, it was always the heart of what made the property so special.
With that in mind, the renovation was never just about updating the space — it was about enhancing it in a way that enhanced its incredible setting. Every decision has been guided by a desire to bring the outside in, to open up the home and frame those expansive views at every opportunity.
At the same time, the renovation is a deeply personal investment in the future of their young family. With two small children, the owners wanted to ensure the home would grow with them — becoming not just a beautiful place to live, but a functional, flexible environment where their kids could thrive. From thoughtful storage solutions to safe, open play areas and spaces that can adapt as the children grow, every detail has been carefully considered to create a house that truly feels like a home.



Now that designs have been completed and approved, the construction process is underway — and you’re invited to follow the journey with us.
Each week, we’ll share a new episode documenting the transformation — from the first dig to the final details. You’ll meet the homeowners, hear their story, and see what it’s really like to renovate a home with Build Right.
This project is more than a renovation — it’s about creating a space where a family can grow, thrive, and truly feel at home. It’s about thoughtful design, craftsmanship, and collaboration. Most importantly, it’s about building right — with heart.
Anyone with young children understands how quickly the belongings begin to accumulate. From toys and books to clothes and everyday essentials, having the right storage becomes less of a luxury and more of a necessity.
With this in mind, the renovation has been thoughtfully designed to include smart, family-friendly storage solutions that help keep the home feeling calm, organised, and ready to support the needs of a growing household.
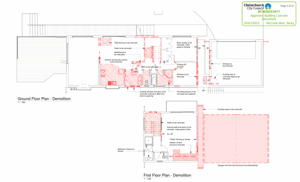
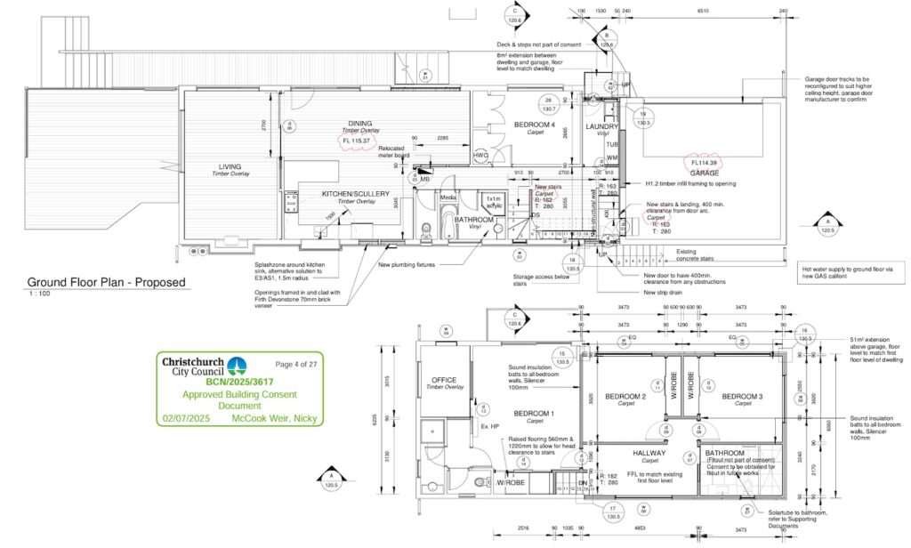
As you can see below, we’re working with an incredible space that holds so much potential. However, the current layout isn’t making the most of the natural light available — something we’re excited to change.
With such an extraordinary view and a unique position high on the Port Hills, there’s a real opportunity to flood the home with sunlight and create a bright, uplifting atmosphere.
Enhancing the natural light will not only transform the look and feel of the interiors, but also strengthen the connection to the stunning surroundings, making the home feel truly exceptional.


“We had the idea for how we wanted to do the extension on the house bubbling away in our heads for a couple of years and we visited the Christchurch Home Show and came across Rex and the Build Right team. From there, we invited Rex to come and see the house and talk about the project with him.”
– Sam and Wei Ching, homeowners
We have moved into the next major phase of the build. Setting up the frames and weather proofing. Every step brings the vision for this young family closer to reality, with more space, more light, and a home that’s truly built for growth and connection.


Getting the structural framework up is a major milestone — it sets the stage for everything that comes after: big openings to the view, the indoor/outdoor connection, and the sense of volume that will carry through the finished space.


The roof framing is now in place and the exterior is now being wrapped and braced, making the home weather-tight so interior finishes can follow without delay.
One of our guiding goals on this project has been to bring the outside in – making the most of those stunning Port Hills views and the strong connection to the landscape. By locking the building envelope early, we can keep the interior space clean, protected and ready for high-quality finishes.


Our trades are on site working on the rough-in services — plumbing, electrical, and ventilation — while the framing is being fine tuned.
Doing this work early ensures we can co-ordinate all of the building systems seamlessly with the architecture and design. It also means fewer surprises later, and the homeowner can rest easier knowing we’re building smart, not just quickly.
In the coming weeks we’ll be moving into:
Thanks for following along on this build. If you’re thinking of renovating, extending or creating your next chapter in a home that grows with you, now’s the time to reach out. We’d love to help you bring your vision to life. Stay tuned for the next update where we’ll show you the space really starting to feel like home.